- 成都優普環保設備工程有限公司
- 電話:183-2853-8768
- 郵箱:1728748202@qq.com
- 網址:www.cqmfyny.com
- 地址:四川省成都市郫都區成都現代工業港北片區港泰大道38號
當前位置:首頁>>技術文章
| 一體化預制泵站的自清潔 |
| 發布者:成都優普環保設備工程有限公司 發布時間:2022/8/16 點擊次數:1421 |
2012綠色交通與區域發展科技論壇中“海綿城市建設”的定義被初次明確提出,接著國務院辦公廳頒布《關于推進海綿城市建設的指導意見》強調,選用滲,滯,蓄,凈,用,排等對策,在其中泵站的運用是不可或缺的,而預制泵站的優點可能變成市政工程排水管道的系統軟件優選。 作為中小型混凝土泵站的代替品,泵站內部的堆積是一個至關重要的難題。傳統式泵站常常存在的不足是坑內垃圾沉積和坑內沉積必須定期進行解決,長期性沉積的廢棄物發散發出臭味,造成周邊環境的惡變,乃至造成有害易燃易爆物品氣體,傷害周圍環境。
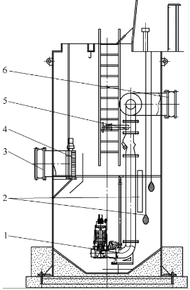
1—水泵及底部2—液位變送器3—出口管4—格柵設備5—閘閥6—出入口管
圖2一體化預制泵站構造 在一體化預制泵站的缺口法蘭盤贓物,設定第一道阻攔對策,即格柵設備。作為一個相對高度集成化,自動化技術的商品,現階段工程項目中常常應用粉碎性格柵,破碎型格柵具備占地面積小和使用便捷等作用,可以使進到泵站內的殘渣第一時間被激光切割破碎。破碎格柵可以把廢水中的懸浮固體和漂浮廢棄物破碎成6~10mm的微小顆粒物,破碎后的小顆粒殘渣不用捕撈,可以根據潛水排污泵立即排出來。 作為贓物制泵站在提升容量的與此同時,明確提出自泵站的自清理計劃方案,處理一體化預制泵站底部臟物殘余及其井室沉積難題。對于這些難題,以作為解決及其清除沉積2個地方作為切入點,依據一體化預制泵站的原理,融合小編有關一體化預制泵站的設計方案工作經歷,從其構造,配備等層面簡單詳細介紹一體化預制泵站的自潔凈作用。 1.格柵設備 從資金視角考慮,可以挑選作為藍式格柵,特性是要按時將格柵從泵站內明確提出,清除格柵內阻攔下的臟物,構造簡易,低成本。相比于破碎格柵,提藍格柵的柵格數據比較大,阻攔殘渣的實際效果不太好。 格柵設備在泵站通道第一時間阻攔,解決比較大或是帶條狀殘渣,防止比較大臟物進到泵站底部進而造成臟物沉積,為一體化預制泵站的防止堆積把好第一關。 2.水泵配備 一體贓物制耦合在提升容選提與此同出口明確提出自泵站的自清理計劃方案,處理一體化預底部站底部過濾殘余及其井室沉積難題。對于這些背部,以臟物解決及其清除沉積2個地方作為切入點,依據一體化預制泵站的原理,融合小編有關一體化預制泵站的出口處漂浮作經歷,從其構造,配備等層面簡單詳細介紹一體化預制泵站的自潔凈作用。 1.井筒自清理構造 一體化預制泵站的筒節底端是通過CFD獨特設計方案(見圖5)的智能化系統下凹式構造,這類與眾不同的水力發電設計方案構造可以確保井室能抵御地表水的負擔而不形變,當水泵啟動時,泵坑的邊坡構造使泵坑內物質做到很高的流動速度,從而造成明顯的渦旋,一方面將底端流水向水泵口集中化,便捷使破碎的臟物更強的被水泵運輸出來,另一方面推動一體化預制泵站底端沉積的殘渣健身運動,防止沉積使沉淀物的固態再度飄浮并進到水泵通道,可以做到自清理的實際效果。
圖5筒節底端CFD速率矢量圖片 2.反清洗設備 針對一體化預制泵站中普遍的固態殘渣以及沉積難題的解決,以上技術早已在現實制造中證實了其實效性,獲得了使用者的認同。可是針對一體化預制泵站內部的另一種環境污染:油漬及飄浮廢棄物,依據用戶滿意度,以上對策還不可以合理處理。針對中國的一體化預制泵站的提升,還必須堅持不懈漂浮的努力。 當一體化預制泵站中的水泵運作啟動時,根據設置的管理程序開啟旁支管路上的電動調節閥,小口徑水主管路內的一部分工作壓力水從旁支管路穿過,因為旁支管路管經較小,促使排出的壓水變成快速流水,快速流水指向一體化預制泵站井室內部非常容易沉積的地點開展沖洗,使一體化預制泵站內堆積的殘渣在水再次沖擊性下伴隨著水泵的運作而被運輸至一體化預制泵站外排出來。依據一體化預制泵站實際運作工作狀況,可以在自動控制系統中智能化地調整電動調節閥的開閉及其打開間距。
圖6管路構造可靠性設計 3.液位儀操縱 當泵站處在枯水期時,液位減少至最少至設定的最少水位線后,由于枯水期底部流液進到泵站,造成液位儀不容易升高到基本起泵部位,長期的停泵期要造成一體化預制泵站井室內廢水中殘渣慢慢沉積,吸咐,以致水蒸氣揮發后堆積物結團。那樣會造成泵站再度運行后,堆積物沒辦法排出來泵站。 維持一體化預制泵站外界構造不會改變,對于一體化預制泵站應用全過程中產生的沉積難題,對一體化預制泵站的管路構造開展可靠性設計,如圖所示6所顯示。在一體化預制泵站底部的水泵出入口的主管路上增設一道旁支管路構造,增設的旁支管路是一個或是好幾個以致口處的管路,口徑小管路的出入口指向一體化預制泵站井室的底部非常容易造成沉積的部位。旁支管路和主管路中間配有電動調節閥,閘閥的電氣控制系統連接一體化預制泵站的控制箱系統軟件,和水泵操縱密切相關。 對于這一難題,對一體化預制泵站自動控制系統作出設置,系統軟件判斷水泵長期關機情況時,啟動枯水期方式:自動控制系統關掉泵站出入口總閘,開啟反清洗設備中的電動調節閥,操縱水泵間距一段時間后短期內運作(比如每相隔6h,水泵起泵運作2min),確保泵站底部廢水不堆積,直到地站下一次徹底啟動。 |
| 上一條:污水處理廠旋流沉砂池停用,對污水廠的運行有影響嗎? | 下一條:污水處理廠粗格柵及一體化污水提升泵站施工方案 |








